Menu Principal:
Está Vd en: Ejercicios>>Sólidos
>>Ejercicio Nº8
| (Actualizado: 10/06/2018) | EJERCICIO Nº8 |
Ejercicio de la función Sketcher |
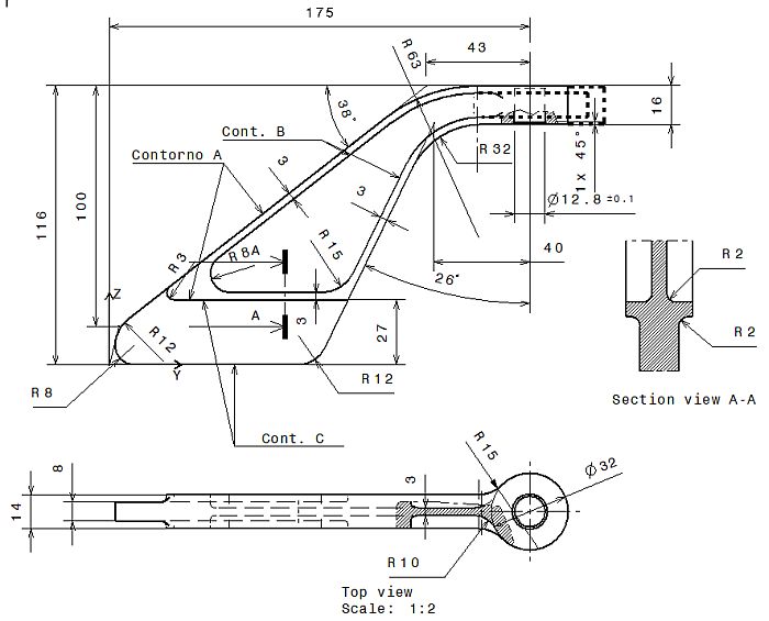
Ejer-N08-PartD-FITTING |

| 1.- | Crear los parámetros: | |
| • | Dia_Fresa= 16mm. | |
| • | R_Fondo=2mm | |
El resto de la explicación, se encuentra en la “zona reservada”: Ejercicio-08.html (Actualmente desactivada)
Funciones: Parameter, Sketch, Pad, Pocket, Chamfer, Edge Fillet, Intersect, Measure| Dirija sus preguntas a: juanri@muchocatia.es | CATIA V5 R27 |